Etude Electrique & Fluide/Plomberie

NOS TARIFS Etudes Electrique et Fluide - Maison individuelle

Etude Electrique

Maison Individuelle inférieure 150m²
350€ TTC

    Délai 1 semaine

  • Plan d'exécution : représentation sur plan des éléments électriques
  • Schéma électrique unifilaire
  • Dimensionnement des câbles et des protections
  • Quantitatif des éléments électriques
  • Note de calcul
Commander

Etude Fluide / Plomberie

Maison Individuelle inférieure 150m²
400€ TTC

    Délai 1 semaine

  • Calculs, Représentation sur plans et Dimensionnement
  • Réseau de chauffage
  • Réseau de plomberie eau chaude et eau froide
  • Réseau des eaux usées
  • Réseau de climatisation
  • Réseau de VMC
Commander

Etude Electrique + Etude Fluide/Plomberie

Maison Individuelle
700€ TTC

    Délai 1 semaine

  • Etude Electrique à 350€ TTC
  • Etude Fluide/Plomberie à 400€ TTC
Commander

Notre service d’Etude Electrique

Notre bureau d’étude peut réaliser pour votre projet de construction :

  • Les plans d’exécution : il contient une représentation des équipements utiles (éclairage, prises, ascenseurs, extraction d’air…), mais aussi de certains éléments structurants de l’installation : tableaux, alimentations, chemins de câbles…
  • Schéma électrique unifilaire : ce schéma électrique contient toutes les informations nécessaires à votre électricien pour réaliser l’installation et votre tableau électrique.
  • Note de calcul : Elle permet de justifier notamment le dimensionnement des câbles et des protections, et permet de vérifier la conformité à la norme d’installation NF C15-100.

La Norme NF C15-100 pour vos projets

La norme NF C15-100 fixe les règles de conception, de réalisation et d’entretien des installations électriques basse tension en France. Elle veut ainsi offrir aux occupants une sécurité optimale et une garantie de bon fonctionnement. Toutes les installations, neuves ou entièrement rénovées, doivent respecter cette norme.

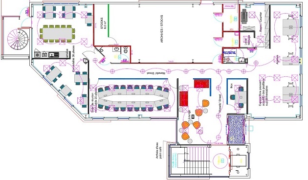
Plan d'exécution

Bureau etude electrique Plans d’exécution​ v3

Note de calcul

Bureau etude electrique note de calcul v2

Schéma électrique unifilaire

Notre service d’Etude Fluide

Notre bureau d’étude peut réaliser pour votre projet de construction :

  • Réseau de chauffage : Nous réalisons les calculs, la représentation sur plans et le dimensionnement de votre chauffage par fluides tel qu’une pompe à chaleur (aérothermie, géothermie), une chaudière (individuelle ou collective), un plancher chauffant…
  • Réseau de plomberie eau chaude et eau froide : Nous réalisons les calculs, la représentation sur plans et le dimensionnement de votre installation d’eau chaude et d’eau froide de votre projet tel que les arrivés aux lavabos, les arrivées aux sanitaires…
  • Réseau des eaux usées : Nous réalisons les calculs, la représentation sur plans et le dimensionnement de votre installation d’eaux usées tels que les évacuations des douches, des lavabos… 
  • Réseau de climatisation : Nous réalisons les calculs, la représentation sur plans et le dimensionnement de votre installation de climatisation dans toutes pièces nécessitant une climatisation
  • Réseau de VMC : Nous réalisons les calculs, la représentation sur plans et le dimensionnement de votre installation VMC 

Une étude fluide pour votre projet

Une étude fluide permet le dimensionnement des réseaux et l’optimisation de l’espace. Elle veut ainsi offrir aux occupants une sécurité optimale et une garantie de bon fonctionnement des écoulements. Une étude fluide permet de dimensionner les réseaux de chauffage, d’eau chaude, des eaux usées, de climatisation et de VMC.

Réseau de chauffage

Etude fluide reseau chauffage

Réseau de plomberie : eau chaude / eau froide

Etude fluide reseau eaux chaude eau froide

Réseau des eaux usées

Etude fluide reseau eaux usees

Réseau de climatisation

Etude fluide climatisation

Réseau de VMC

Etude fluide reseau VMC

Notre bureau d’Etude Electrique et Fluide

Les études sont réalisées par notre service de bureau d’étude HMD solution dont voici le site internet : www.hmd-solution.fr

Bureau etude fluide et electrique

Intéressé Par Nos Services ?

Laissez-nous un message, nous vous contacterons dans quelques minutes :

    Par téléphonne : 04 28 29 80 74

    Par E-Mail : contact@permis-construire-mairie.fr